EIN SØGULIGUR SVIMJIHYLUR
Í Svínoy hava vit ein útisvimjihyl, ið sigst verða bygdur í 1933, møguliga fyrr. Stigtakarin til hylin var Hjálmar Hátún, sum var lærari í Svínoy tá.
Svínoy var sum kunnugt úti fyri fleiri syndarligum sjóvanlukkum fyrst í 20. øld. Hvørki børn ella vaksin dugdu at svimja, og hugsjónin aftan fyri hylin var, at tað áttu øll at duga.
Svimjihylurin er í Stórá, stutt niðan fyri bøgarðin. Hann er laðaður av gróti, og stoypt varð rundanum fyri at gera hann tættan. Fyrst í tredivunum var ringt at skaffa sand, so tað vóru skúlabørnini, sum hjálptu til við at bera sand frá fjøruhyljum á Handanslandinum. Á ávísari hellu fyllist sandur í hyljar, tá uppgangur er, og har varð sandur tikin og borin í spannum heim til bygdina. Hetta arbeiði vóru skúlabørnini við til at gera, og síðani hylurin kom, hava skúlin og skúlabørnini verið við til at hildið hann við líka. Øll skúlabørn í Svínoy hava svomið í honum, og so leingi skúli var í bygdini, vóru tað skúlabørnini, sum reinsaðu hylin um várarnar, áðrenn hann skuldi typpast til summarbrúks.
##med2##
TØRVAR ÁBØTUR
Nú er hylurin í ringum standi, og hóast hann hevur verið nógv brúktur hvørt summar, so er tað nógva av betonginum máað burtur. Seinastu árini hevur hann ikki verið tømdur, og tað hevur ikki farið væl við kantinum, tí vatnið alla tíðina hevur runnið omanav. Hylurin hevur sæð út til at kunna leypa, um áarførið var.
Eftir áheitan syrgdi Klaksvíkar kommuna í heyst fyri at opna lúkuna fyri at lætta um trýstið á kantin, so lítið vatn er í hylinum nú. Hann treingir til ábøtur og eina nýtiliga typpingarskipan, áðrenn hann kann brúkast aftur sum áður. Leingi er tað, ið væl skal verða, og tað hevur nú tikið okkum 1 ár at gera vart við hetta, so nú er upp á tíðina at fáa gongd á arbeiðið at umvæla svimjihylin í Svínoy.
KOMMUNAN EIGUR FÍGGJANDI LEIKLUTIN
Hvørt summar hevur hylurin verið til gleði fyri svínoyingar og vitjandi. Góðveðursdagar hava bæði børn og vaksin hildið til haruppi, og gleðisróp og látur hava borist oman í bygdina. Nú eru svínoyingar bangnir fyri, at hylurin ikki fer at kunna brúkast í summar, tí tað hevur gingist so illa við at fáa kommununa at fíggja umvælingina av honum.
Vit svínoyngar heita tí á Klaksvíkar kommunu um at seta pening av til hesa verkætlan at verja svimjihylin í Svínoy, tí svimjihylurin gagnar øllum, bæði børnum og vaksnum, svínoyingum eins væl og vitjandi. Vit fegnast sjálvsagt um, at svimjihylurin kom á fíggjarætlanina fyri 2021 í fjør, men vit harmast samstundis um, at eingin peningur ítøkiliga varð settir av til hetta endamálið.
KANN GERAST EIN SONN PERLA FYRI FERÐAVINNUNA
Eisini kundi hylurin gjørst eitt ferðamál í sjálvum sær. Ikki bert hjá føroyingum, men so sanniliga eisini hjá útlendingum. At svimja á sjónum er vorðið sera vanligt, men Svínoy er brimpláss, og tað er ikki trygt at svimja á sjónum nakrastaðni. Men svimjihylin hava vit, og hann hava vit brúkt, og vóna at kunna brúka hann mong ár framyvir. Søgan um hylin er partur av bygdarsøguni, ein søga sum er verd at siga bæði fyri føroyingum og útlendskum ferðafólki. Útsýnið frá hylinum yvir bygdina er einastandandi, ein sonn náttúruuppliving. Væl sæst út á Víkina og tvørtur um alt Eiðið.
Oman fyri hylin stendur ein av fleiri gomlum kornmyllum, so staðið angar bæði av vakurleika og tjóðarfornminni. Saman við einum hóskandi skiftingarskúri, kundi hylurin harafturat verið ein tænasta og eitt stað at visa fram fyri ferðafólki. Hylurin er jú søguligur, og umboðar eina áhugaverda tíð fyri 90 árum síðani, tá fáir føroyingar dugdu at svimja. Søgan um hylin er verd at siga, og onki sigur søguna betri enn hylurin sjálvur, har hann liggur í ánni so passaliga djúpur og passaliga stórur. Hann fellur so vakurt inn í landslagið, sum hann er partur av.
KOMMUNAL HEILDARÆTLAN Í SAMSTARVI VIÐ SKÚLA OG SVÍNOYINGAR
Umframt neyðugu umvælingina av sjálvum betongkantunum á hylinum, hevði tað verið skilagott í sama viðfangið at gjørt økið rundanum serligt við einum hóskandi skiftiskúri, hitapotti og eini gongubrúgv tvørtur um ánna.
Sjúrður á smolturstøðini hevur longu stuðlað verkætlanini við einum slíkum potti, sum manglar eina betonggrund at verða settur á. Vit síggja hetta sum eina heildarætlan, har ið Klaksvíkar kommuna stendur fyri fíggjarligu kørmunum (tilfar og gisting), tekniski skúli o.a. kunnu gera hylin til eina læruríka og spennandi verkætlan og vit svínoyingar hjálpa fegin til, tá ið arbeiðið kann byrja sum seturskúli úti í hugnaliga umhvørvinum í Svínoy. Her hugsa vit um tann mestsum gloymda gimsteinin í Svínoy, Gamli Garður, sum hevur allar modernaðar hentleikar at hýsa einum stórum hópi upp á 32 fólk. Soleiðis fær kommunan eisini roynt hetta góða hús, sum hóskar sera væl til framtíðar ferðavinnu í oynni.
Heilt ítøkiliga kunnu byggistigini verða fylgjandi:
- 0) At føra alt tilfar út til Svínoyar (sement, timbur, o.a.)
- 1) Umvælingin av svimjihylinum: reinsa hylin, stoypa í rivurnar á kantunum og gera
typpingarskipanina (ventil í botnin).
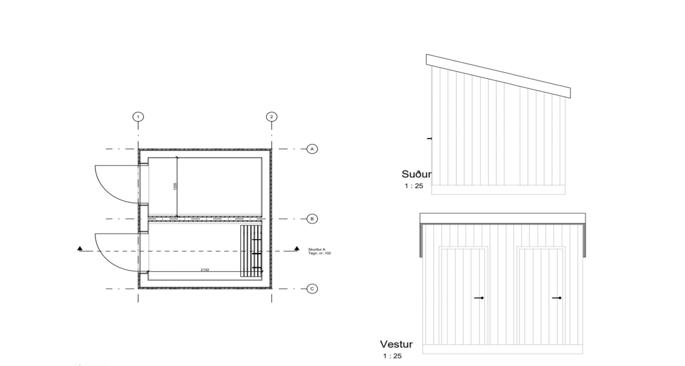
- 2) Skiftiskúrur: stoypa eina grund, byggja ein skúr úr timbri (sí teknað uppskot niðanfyri).
- 3) Træbrúgv tvørtur um ánna: henda brúgv fer at gera møguligt at ganga yvir um til hitapottin
hinumegin.
- 4) Hitapottur: stoypa grund til at festa hitapottin á. Skiftiskúrur og hitapottur skulu vera hvør sínu
megin ánna.
- 5) Endurreising av kornumylluni í ánni: grótlaðing og flag.
Her er ein tekning av skiftiskúrinum, har ið bæði kyn kunnu skifta samstundis (teknað hevur Elisabeth Mortensen, arkitektur):
##med3##
##med4##
Fyrsti várdagur er nú farin um bak við spírandi vøksturi og reiðrandi fuglum, sólin hevur kagað, og tann seinasta kavafonnin sigur farvæl. Og við várligari kvøðu vóna vit av sonnum, at umvælingin av svimjihyli Svínoyar kann koma í lag í vár, so at øll kunnu njóta henda tiltikna hyl í summar. Ja, eingin eigur at vitja Svínoynna uttan at hava verið ein túr uppi við svimjihylin!
##med5##
Petur Asano, vegna allar svínoyingar
FOTOMYNDIR: 1 og 3 eftir Petur Asano og 2 er úr myndarøð hjá R7 (https://r7.fo/news/25739/myndarod-ur-svinoy-i-1977-skulaborn-i-svinoy-a-utferd-vid-svimjihylin)















